
Electrical Installation Condition Report & Certificate (EICRs)
- Last reviewed:
- Changes: Initial publication covering EICR requirements, costs, validity periods, and qualification pathways for England, Wales, Scotland, and Northern Ireland

Table of Contents
Everything you need to know about a Electrical Installation Condition Report called an (EICR), when you need one, when you don’t need one, what happens if you need one but don’t have one, and most importantly what, when and how to do it.
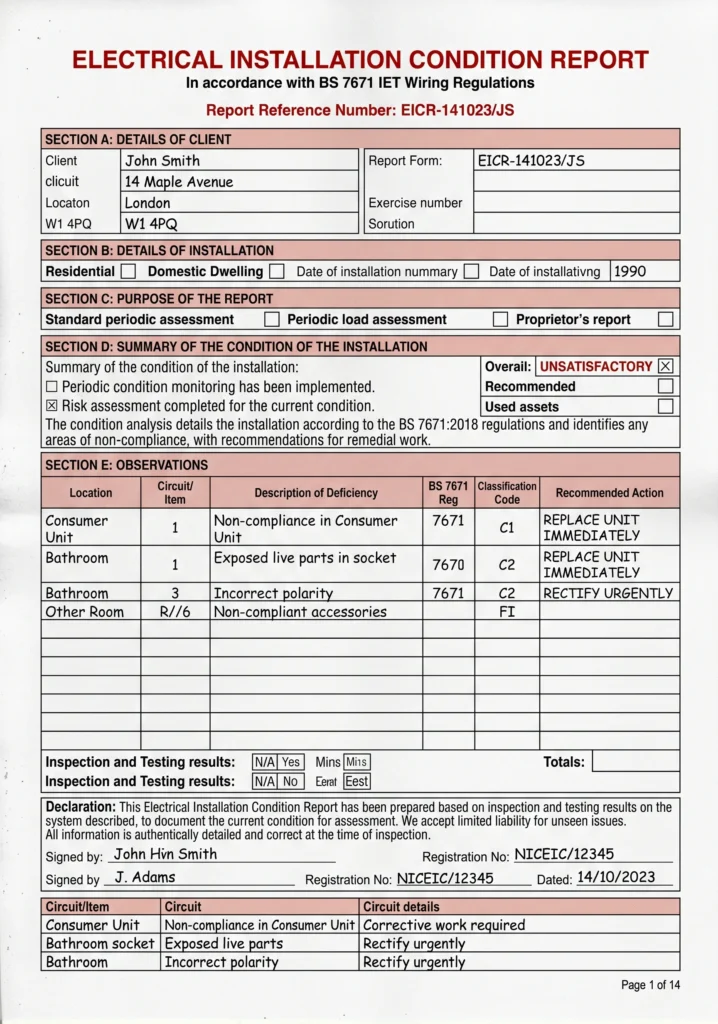
What is an EICR?
If your searching for EICR most likely you have all ready come across the term, it stands for – Electrical Installation Condition Report, 99.9% of the UK would not know what is actually involved, speak to most sparkies and even they will struggle to do one, as it’s a specialist area of being an electrician.
So Why is it so important now?
How long is an EICR valid for?

The certificate is normally valid for 5 years, unless its stated otherwise on the certificate by the electrician (the legal standing is that a rented property must have a EICR done every 5 years). Home owners are advised to have one done every 10 years, and most estate agents recommend house sellers to get one done before listing their property.
What does an EICR provide and what does it tell me?
What will be checked, inspected and tested?

As I would call it – the 4 pillars, this is what I would say make a solid EICR.
- The Consumer Unit (Fuse Board)
- The Wiring (Insulation)
- Damage/Wear and Tear
- Earthing and Bonding
What standard should an electrical installation meet?
What is the Purpose of an EICR? (Electrical Installation Condition Report)
How do EICRs differ from visual inspection reports?
The best way I can explain it, the difference is the same as someone walking around your car and kicking the tyres whilst checking the paint work, compared to a trained mechanic opening the car and doing a full MOT.
A visual inspection report, literally is that, they normally do not focus on:
- Any kind of testing
- Fault Finding
The biggest problem, it does not cover you for legal compliance, its sometimes used for peace of mind when in-between checks.
Do I have to get an EICR?
Is an EICR a legal requirement in Wales?
| Country | Started | Full Compliance | Legislation |
|---|---|---|---|
Scotland First in the UK to legislate | Dec 2015 | Dec 2016 | Housing (Scotland) Act 2006 |
England Triggered by Grenfell-era safety reforms | Jul 2020 | Apr 2021 | Electrical Safety Standards Regs 2020 |
Wales Broadest tenancy reform in devolved history | Dec 2022 | Dec 2023 | Renting Homes (Wales) Act 2016 |
Northern Ireland Most recent — rolling out now | Apr 2025 | Dec 2025 | Private Tenancies Act (NI) 2022 |
What happens during an EICR?
Will happen in the check?
- Visual inspection
- Testing of circuits
- Recording the results
- Issuing the report
They will have a quick walk around to see if there is any visual signs of degraded or damaged electrical circuits, the telltale signs normally include but not limited to:
- Cracked sockets
- Overheating Marks
- Discoloured Sockets
- Buzzing or cracking sounds
- Fuse Board layout and material (general rule of thumb it should have a button on it saying test.)

Testing of circuits
This is broken down into two sections, whilst the power is off and then live testing.
So the first part is what we call dead testing, as the name says, its done when all power is turned off at source. They will send a small tiny pulse and measure how much stays inside the wire, if you have leaks it will show up (leaks normally indicate damaged wiring, which is one of the biggest risks that start house fires).
Live Testing, for me this is so important (long story short, I got electrocuted as a 7 year old),

What does a report include?
Every circuit needs to be documented, this could include but not limited to:
- lighting circuits
- cooker circuits
- shower circuits
- socket circuits
- Outbuildings
- Hard wired smoke/fire alarms
Remedial work for electrical installations or equipment

Which homes do the regulations apply to?
| Property Type | Is it Legal? | Frequency |
|---|---|---|
| Private Rental | Yes (Mandatory) | Every 5 Years |
| Social Housing | Yes (Mandatory from 2026) | Every 5 Years |
| HMOs (Shared Houses) | Yes (Mandatory) | Every 5 Years |
| Owner-Occupied | Recommended | Every 10 Years |
What checks are required for specialist items such as solar photovoltaic equipment or battery storage systems?
Does inspection and testing need to be undertaken if it is a new build home or there are new electrical installations?
| Feature | EIC (New Work) | EICR (Existing Work) |
|---|---|---|
| Purpose | To certify brand-new wiring. | To check the “health” of old wiring. |
| When you get it | Immediately after the job is done. | Every 5 years (for rentals). |
| Landlord Legal? | Yes, it counts as a pass for 5 years. | Yes, it is the standard pass. |
Do the regulations apply to communal areas in blocks of flats or communal areas within the premises?
| Area | Frequency | Why? |
|---|---|---|
| Corridors & Stairs | 5 Years | To ensure safe exit routes and lighting. |
| Lifts & Risers | 5 Years | To prevent entrapment and electrical fires. |
| External Lighting | 5 Years | To prevent shocks in wet outdoor conditions. |
| Emergency Lighting | Monthly/Annual |
Separate dedicated testing for battery backup. |
What does it mean for landlords?
Does an EICR need to be undertaken before each new tenancy if a valid report or record already exists?
Will a tenant be entitled to compensation if they have been living in a home with faulty electrics?
What if the landlord is the local council?
Enquire Now
Do you need a professional to install an EICR test?
How does a landlord find a qualified person?
Financial penalties
What happens if I don’t have an EICR or don’t get the issues fixed?
| Category | Is it Mandatory? | Frequency | Primary Penalty |
|---|---|---|---|
| Private Landlord | YES | Every 5 Years | Up to £40,000 fine + Rent Repayment |
| Social Landlord | YES | Every 5 Years | Mandatory by May 1st, 2026 |
| Business / Commercial | YES (De Facto) | 1–5 Years* | Unlimited H&S fines / Void Insurance |
| HMO (3+ tenants) | YES | Every 5 Years | £40,000 fine + Loss of License |
| Resident Landlord (1–2 Lodgers) | NO | Recommended | Civil liability if injury occurs |
| Homeowner | NO | 10 Years (Rec) | Possible insurance claim rejection |
| Selling a Home | NO | Upon Sale | Often requested by buyers/lenders |
| Stage | Name | What Happens | Your Action/Deadline |
|---|---|---|---|
| Stage 1 | Alleged Breach | The council identifies a potential failure (e.g., no EICR on file or a tenant complaint). | Ensure your records are organized and ready. |
| Stage 2 | Notice of Intent | The council sends a formal letter stating they intend to issue a financial penalty. | 28 Days to submit “Representations” (your evidence/defense). |
| Stage 3 | Final Notice | The council reviews your defense. If they reject it, they issue a formal demand for payment. | Payment is now legally due unless you choose to appeal. |
| Stage 4 | Formal Appeal | You lodge a case with the First-tier Tribunal if you believe the fine is unfair or legally wrong. | 28 Days from the Final Notice to lodge the appeal. |
| Stage 5 | Tribunal Decision | An independent judge hears the case and makes a final ruling on the penalty. | The fine is either upheld, reduced, or cancelled entirely. |
References
Note on Accuracy and Updates
Last reviewed: 27 April 2026. This page is maintained regularly. We correct errors and refresh sources as electrical safety regulations and guidance change. EICR legal requirements updated following Social Housing (Regulation) Act 2023 implementation. BS 7671 references current as of 18th Edition Amendment 2 (2022). Costs and market expectations reviewed quarterly based on industry data. Next review scheduled: April 2026 following any regulatory changes.

By Charanjit Mannu
Director, Elec Training
Based on real training delivery, learner outcomes, and current UK electrical regulations.
- City & Guilds Approved
- 4.8★ Google Reviews
- 1000+ Electricians Trained



Prefer a callback?
- City & Guilds
- 4.8 Trustpilot
- JIB Recognized
- 1,000+ Trained

